2 Bedroom
1 Bathroom
924 ft2
Central Air Conditioning
Forced Air, See Remarks
Landscaped
$320,000Maintenance, Pad Rental
$600 Monthly
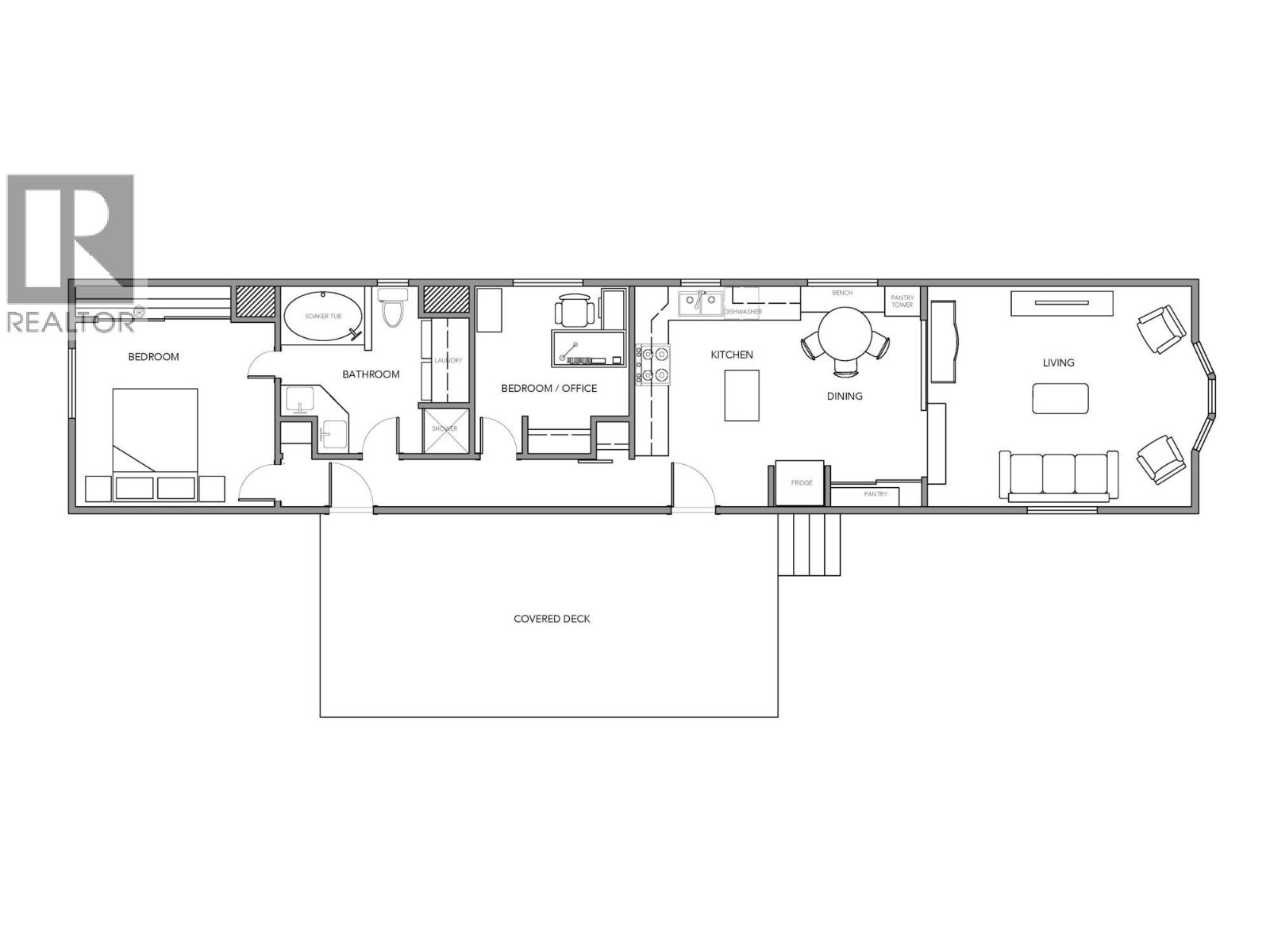
Visit REALTOR website for additional information. Fully drywalled throughout — no traditional manufactured-home paneling — this beautifully updated 2-bedroom, 1-bath manufactured home offers comfortable, low-maintenance living in the sought-after gated Crystal Springs 55+ community in West Kelowna. The updated kitchen (2023) features modern cabinetry, tile backsplash, and new appliances. An open-concept layout connects the kitchen and living area, creating a bright, functional space ideal for everyday living or entertaining. Two well-proportioned bedrooms offer flexibility for guests or a home office. The spacious bathroom includes a large soaker tub, separate shower, and dual-sink vanity. A covered deck provides a shaded outdoor space to enjoy the Okanagan sunshine. Recent upgrades include full drywall, new skirting (2023), new furnace and central A/C (2023), new hot water tank, and newer front-load washer and dryer. Parking accommodates up to four vehicles with both covered and uncovered spaces, plus visitor parking. A storage shed offers additional room for tools and seasonal items. Crystal Springs features a secure gated entrance, clubhouse, RV parking, guest suites, and beautifully maintained grounds — all conveniently close to shopping, dining, and medical services. Currently tenanted with a lease in place until May 15, 2026. Possession available after that date. (id:53701)
Property Details
|
MLS® Number
|
10379072 |
|
Property Type
|
Single Family |
|
Neigbourhood
|
Shannon Lake |
|
Amenities Near By
|
Public Transit, Schools |
|
Community Features
|
Adult Oriented, Rentals Allowed With Restrictions, Seniors Oriented |
|
Parking Space Total
|
4 |
|
View Type
|
Mountain View |
Building
|
Bathroom Total
|
1 |
|
Bedrooms Total
|
2 |
|
Appliances
|
Range, Refrigerator, Dishwasher, Dryer, Microwave, Washer |
|
Constructed Date
|
1991 |
|
Cooling Type
|
Central Air Conditioning |
|
Exterior Finish
|
Vinyl Siding |
|
Fire Protection
|
Controlled Entry |
|
Flooring Type
|
Carpeted, Hardwood, Laminate |
|
Foundation Type
|
See Remarks |
|
Heating Type
|
Forced Air, See Remarks |
|
Roof Material
|
Asphalt Shingle |
|
Roof Style
|
Unknown |
|
Stories Total
|
1 |
|
Size Interior
|
924 Ft2 |
|
Type
|
Manufactured Home |
|
Utility Water
|
Municipal Water |
Parking
Land
|
Acreage
|
No |
|
Current Use
|
Other |
|
Fence Type
|
Not Fenced |
|
Land Amenities
|
Public Transit, Schools |
|
Landscape Features
|
Landscaped |
|
Sewer
|
Municipal Sewage System |
|
Size Irregular
|
0.1 |
|
Size Total
|
0.1 Ac|under 1 Acre |
|
Size Total Text
|
0.1 Ac|under 1 Acre |
Rooms
| Level |
Type |
Length |
Width |
Dimensions |
|
Main Level |
5pc Bathroom |
|
|
10'9'' x 10'5'' |
|
Main Level |
Bedroom |
|
|
9'1'' x 10'0'' |
|
Main Level |
Primary Bedroom |
|
|
11'10'' x 13'1'' |
|
Main Level |
Kitchen |
|
|
9'9'' x 13'1'' |
|
Main Level |
Dining Room |
|
|
7'0'' x 13'1'' |
|
Main Level |
Living Room |
|
|
15'7'' x 13'1'' |
https://www.realtor.ca/real-estate/29462469/1850-shannon-lake-road-unit-17-west-kelowna-shannon-lake